| Рубрика | Продава | 
| Вид на имота | Тристаен апартамент | 
| Квартал | Изгрев | 
| Населено място | гр.Бургас | 
| Област: | Бургас | 
| Държава | Bulgaria - BG | 
| Цена / Валута |   117600 EUR  | 
| Площ | 98 | 
| Етаж | 6 | 
| Етажност | 9 | 
Описание: Цена на строител - без комисионна!
Хелена Резиденс - 3!
ЯВИСТ недвижими имоти, представя най новият проект на доказан строител - качество и срок!
Най-бързоразвиващ се квартал на Бургас - Хоризонт.
Непосредствено до студентския кампус, чието строителство вече е започнало.
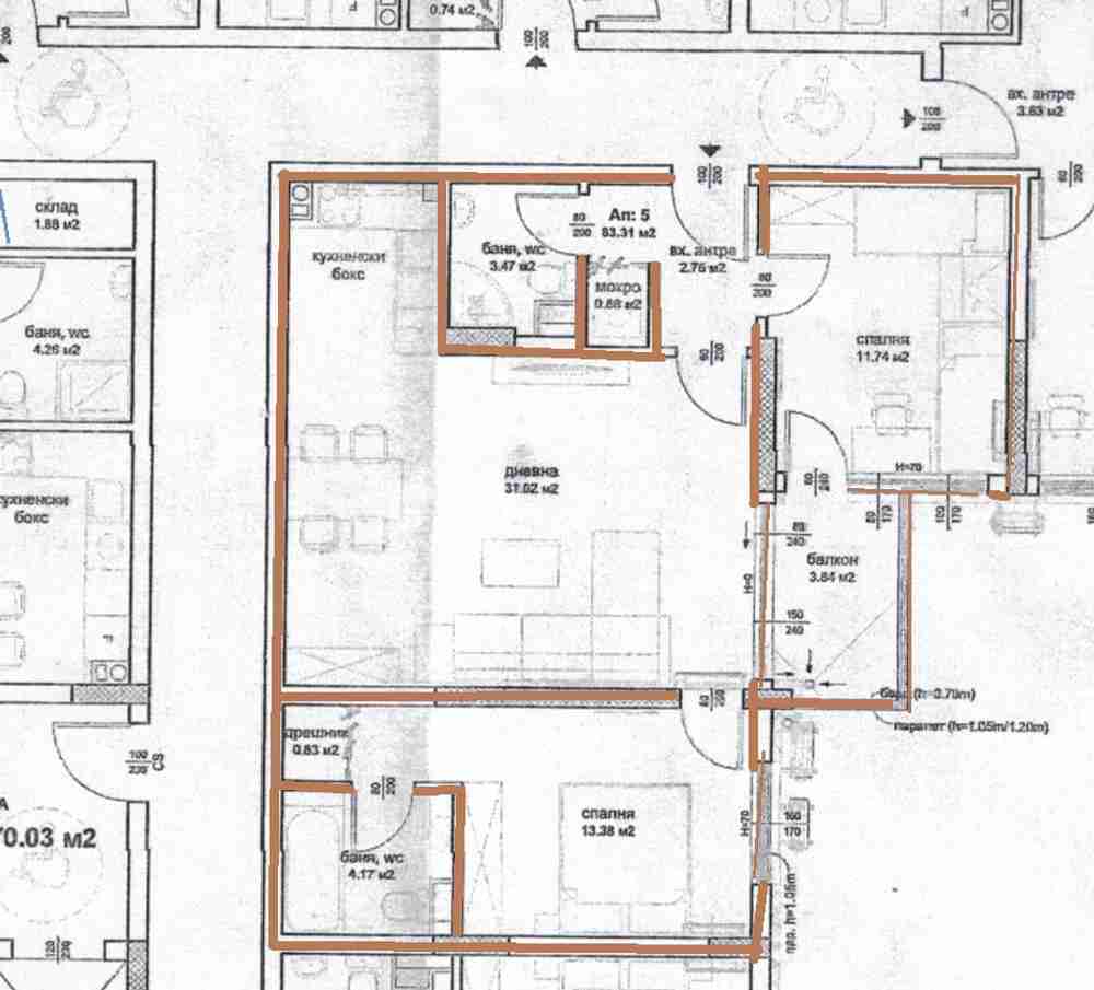
Тристаен апартамент с площ от 98кв.м. разпределени в просторна дневна с кухненски кът, две спални, едната със самостоятелна баня-тоалетна, коридор, втора баня-тоалетна. килер, и една тераса към която има излаз от дневната и детската спалня.
Изложение - Юг - към тихата част на сградат ориентирано в посока зелен кът за отдих
Възможност за покупка на паркомясто - 7000евро или гараж-25000евро
Свободни още няколко тристайни и четиристайни апартаменти, паркоместа и гаражи!
Гъвкава схема на плащане!
Резервирайте сега, когато имате избор!
Стартиращо строителство септември 2025г - ХЕЛЕНА 3
Искате да закупите нов дом!
Искате да инвестирате сигурно парите си!
Искате района да е с изградена инфраструктура!
Искате локацията да е добра!
Искате проекта да хубав!
Искате качествено строителство!
Искате да видите, как ще изглежда новият ви дом!
Искате цената да е разумна и да не претърпи промени по време на строителството!
Заповядайте в офиса за да разгледате разпределения и свободни апартаменти!  | |
| Номер на офертата | 1025745 | 
| Дата на посл. промяна | Thu Jul 24 2025 | 
| Брой посетители | 501 | 
| За контакти: |  Фирма: ЯВИСТ Държава: Bulgaria Населено място: гр.Бургас Адрес: ул. Места 46, ет. 2 Телефони за контакт: +359899800818 E-mail: office@yavist.bg  |